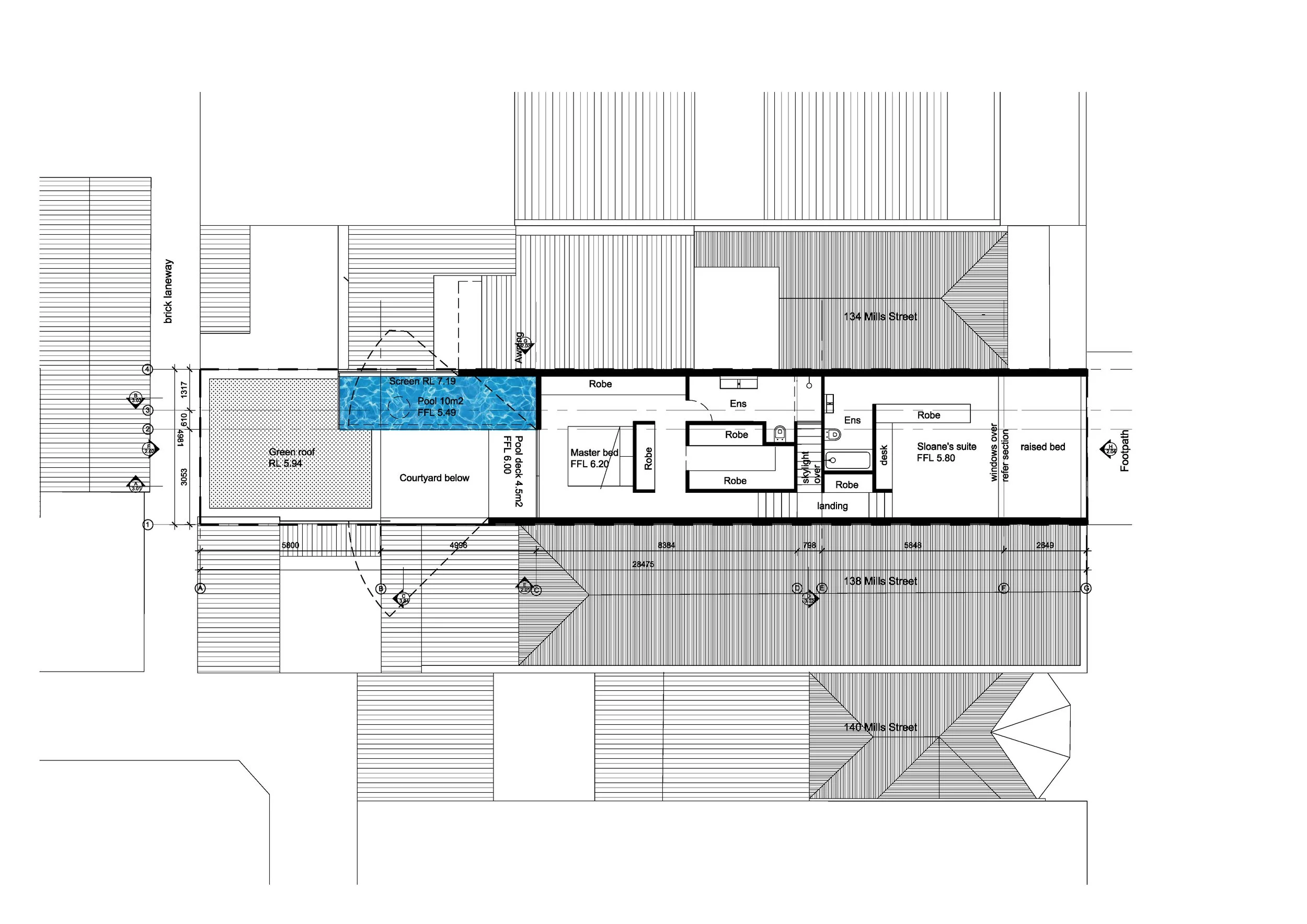
Mills Street

Melbourne Australia - Planning Approved

2024

Concept designs and planning documents for the renovation of a terraced house in Melbourne Australia, designed to maximise natural light through on internal courtyard and central atrium space, with a lap pool and sunterrace on the upper level.